Fondi in Affitto a Pisa
Zona: Quartiere San Martino
Classe energetica
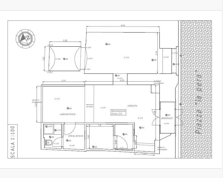
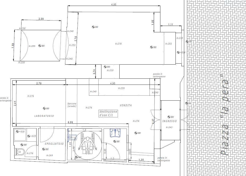
Affittasi fondo commerciale in Piazza Gambacorti ideale per piccola ristorazione; affacciato su una delle più belle piazze del centro storico il fondo commerciale è stato completamente ristrutturato ed è ideale per un'attività di somministrazione. L'immobile è inserito in un bel fabbricato storico ed è completamente ristutturato e subito disponibile
Il fondo commerciale in Affitto a Pisa centro storico si trova nelle adiacenze di Corso Italia in ottima ubicazione ideale per attività di piccola ristorazione, bar, pub e qualsiasi attività di sommistrazione. Per informazioni e visite contattare 3357719182
Commercial space for rent in Piazza Gambacorti, ideal for a small restaurant. Overlooking one of the most beautiful squares in the historic center, the fully renovated commercial space is ideal for a catering business. The property is located in a beautiful historic building and is fully renovated and available immediately. This commercial space for rent in Pisa's historic center is located near Corso Italia, in an excellent location ideal for small restaurants, bars, pubs, and any other catering business. For information and viewings, please contact 3357719182.
Ultimo aggiornamento 27-10-2025
































